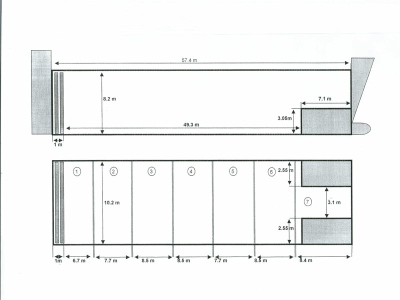
Fitted for the carriage of Hazardous Cargo IMO 5.1 e.g. Ammonium Nitrate and is also container fitted (153 TEU) and strengthened for carriage of containers. 8.2m height under hatches.
Built: Viana do Costelo, 1990
DWAT: 3,181 tonnes
DWCC: 3,000 (summer), 2,950 (winter)
GT/NT: 2,440 / 1,063
LOA: 87.47m
Beam: 13.00m
Draft: 5.00m
Hold: 57.40 x 10.2 x 8.2m
Hatches: Kvaerner Folding Type, 2 Moveable Bulkheads
Cubic: 4,576m3 / 161,000 cuft
Ceiling: Steel, strengthened for heavy cargo
Class: Germanischer Lloyd
Flag: Barbados
(all details believed to be correct but given without guarantee)




